Services

De la conception à la réalisation, un accompagnement sur mesure pour chaque projet.

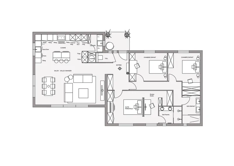
Qu'est ce qu'un Plan ? — Clémentine Droussé architecte d'intérieur

Qu'est ce qu'un Plan ?

A partir d’un relevé de mesures, je réfléchis à la meilleure façon d’aménager votre pièce. Pour ce faire, je prends en considération les contraintes du lieu en tenant compte de vos habitudes de vie et vos envies ..!

Qu'est ce qu'une vue en 3D ? — Clémentine Droussé architecte d'intérieur

Qu'est ce qu'une vue en 3D ?

A partir de vos plans, je réalise un aménagement 3D afin d’appréhender les proportions au sein de votre pièce. Vous voulez changer de taille de canapé ou ajouter un meuble, je prends en compte toutes vos exigences et vous conseille sur les dimensions pour vos futurs achats. Vous faîtes construire et vous avez besoin de poser vos meubles pour vous projeter, cette prestation est faite pour vous !

Qu'est ce qu'une MoodBoard ? — Clémentine Droussé architecte d'intérieur

Qu'est ce qu'une MoodBoard ?

Grâce à la planche tendance, vous serez tout de suite sensibilisé a l’ambiance et le style que je souhaite donner à votre pièce.

Qu'est ce qu'un Rdv chez vous ? — Clémentine Droussé architecte d'intérieur

Qu'est ce qu'un Rdv chez vous ?

Lors d'un entretien d’environ 1heure 30 chez vous, nous échangeons sur votre mode de vie et vos désirs. Pendant cette visite nous cherchons votre style déco, choisissons ensemble les couleurs et matériaux, réfléchissons à l’aménagement de l’espace et trouvons des astuces pour re décorer votre pièce selon vos envies.

Qu'est ce qu'une planche de matériaux ? — Clémentine Droussé architecte d'intérieur

Qu'est ce qu'une planche de matériaux ?

Grâce à la planche de matériaux, vous serez tout de suite sensibilisé a l’ambiance et le style que je souhaite donner a votre pièce.

Qu'est ce qu'un Home staging ? — Clémentine Droussé architecte d'intérieur

Qu'est ce qu'un Home staging ?

Cette formule est idéale si vous avez envie d’une nouvelle décoration à petit prix ou bien si vous cherchez à vendre ou à louer votre bien immobilier. Créer une ambiance neutre et impersonnelle permettra aux visiteurs de se projeter facilement dans les différents espaces et de s’approprier plus facilement les lieux.